Modena (Sacca)
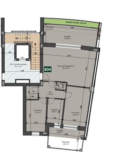
MO867B_B4 Nostra esclusiva, Via del Mercato, all'interno del nuovo comparto Ex Mercato Bestiame, nuova realizzazione di palazzina (Classe Energetica A4-NZEB) vendesi appartamento "B4" al piano secondo con ascensore, di 100 mq., due logge coperte e giardino pensile.
Caratteristica peculiare dell’intervento è l’adozione di avanzate tecnologie impiantistiche d’avanguardia volte al massimo contenimento del consumo energetico nel pieno rispetto dell’ambiente, infatti tutte le unità immobiliari saranno edificate in classe “A4” (secondo la delibera della Regione Emilia Romagna dgr. 20 luglio 2015, n. 967).
Il capitolato prevede finiture di pregio tutte personalizzabili, pavimenti in ceramica grandi formati, rubinetterie e sanitari di design, riscaldamento a pavimento, tapparelle frangisole motorizzate, impianto per il ricircolo dell'aria meccanizzato, pannelli fotovoltaici, predisposizione per antifurto e impianto di climatizzazione.
Appartamento così disposto: soggiorno/pranzo con cucina a vista, loggia coperta, giardino pensile, disimpegno, 2 camere da letto, due bagni (di cui uno cieco) e ripostiglio.
Possibilità di personalizzazione degli spazi e delle finiture interne.
Possibilità di scelta tra diverse autorimesse e posti auto interni a parte nel prezzo.
Prezzo: €. 300.000,00
Consegna ottobre 2027.
Per informazioni e visite: 335-6444800 dott. Gollini Enrico, 340-7710085 dott. Corica Giuseppe, 335-6917982 Mastrodomenico Emidio, 335-6880908 geom. Fella Cristiano, 335-7853006 geom. Zara Costantino.
In alternativa ulteriori info sul ns sito GRUPPOMORE.IT digitando CODICE DI RIFERIMENTO o inviaci una mail gestionecantierigruppomore@cataimm.it

Piano Secondo - Totale piani 3 - Ascensore Si

Mq 99,86 - Locali 3 - Camere 2 - Bagni 2 - Mq Giardino 5,34

Riscaldamento Conta Calorie - Tipo Riscaldam. Pompa di Calore

Orientamento Sud Ovest - Lati Liberi 2 - Consegna Al rogito

Stato Immobile Prossima Realizzazione - Grado Signorile - Tipo Soggiorno Soggiorno - Tipo Cucina A Vista - Tipo Impianto Pavimento - Fonte Energetica Fotovoltaico - Acqua Calda Centralizzata - Raffrescamento Predisposizione - Infissi PVC Doppio Vetro - Serramenti Nuovo - Persiana Tapparella Metallo - Pavim. Giorno Gres Porcellanato - Pavim. Notte Gres Porcellanato - Pavim. Cucina Gres Porcellanato - Pavim. Bagno Gres Porcellanato - Accesso Disabili Nessuna Barriera - Accesso interno disabili Pieno accesso - Isolamento Presente - Isolamento termico Cappotto esterno - Isolamento acustico Isolamento completo
ACCESSORI: Antifurto, Aria Condizionata, Bagno Handicap, Cancello Elettrico, Doppi Vetri, Impianto Fotovoltaico, Impianto Satellitare, Passaggio Automobilistico, Passaggio Pedonale, Porta Blindata, Rete Dati, Ripostiglio, Tapparelle Elettriche, Video Citofono
Classe A4
Prezzo € 300.000
Per vedere tutte le foto
vai su gruppomore.it
e inserisci il codice
MO867B_B4
oppure inquadra il qr code
Qr Code