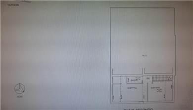
Piano Primo - Totale piani 2 - Ascensore No
Mq 95 - Locali 5 - Camere 3 - Bagni 2 - Box 1 - Mq Box 15
Riscaldamento Autonomo - Tipo Riscaldam. Caldaia a Condensazione
Lati Liberi 3 - Consegna Libero
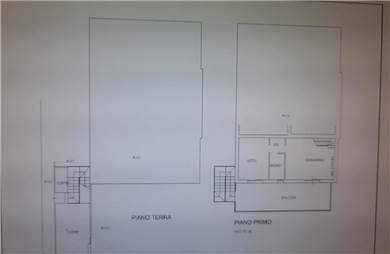
Piano Primo - Totale piani 2 - Ascensore No
Mq 95 - Locali 5 - Camere 3 - Bagni 2 - Box 1 - Mq Box 15
Riscaldamento Autonomo - Tipo Riscaldam. Caldaia a Condensazione
Lati Liberi 3 - Consegna Libero
