Modena (Buon Pastore)
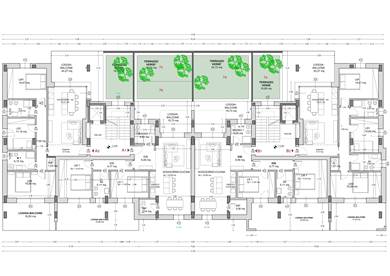
MO794-BPB1. Nostra esclusiva. Viale Buon Pastore, all'interno del nuovo comparto Ex-AMCM disponibile app.to B1 di 139 mq. comm. ubicato al piano primo di cinque con ascensore.
App.to così disposto: ingresso, soggiorno con cucina a vista, ripostiglio, ampia loggia coperta e terrazzo con giardino pensile, dis. notte, due camere da letto (dotate di seconda loggia) e due bagni.
Il progetto di riqualificazione dell’intera area si realizzerà tra le vie Peretti, Buon Pastore e Carlo Sigonio situato nelle immediate vicinanze del centro storico prevede oltre la realizzazione delle 4 palazzine in classe "A4", una palazzina che ospiterà il nuovo Teatro delle Passioni, una grande piazza pedonale e ciclabile con verde e sedute, un parcheggio seminterrato di circa 245 posti, un’area foyer ed uno uno spazio pubblico.
Al centro del comparto una palestra in una nuova costruzione di circa 2.150 metri quadrati; l'impianto sportivo sarà fruibile sia in modalità scolastica, sia per gli allenamenti e le gare sportive.
È previsto altresì la realizzazione di un supermercato di quartiere (900 metri quadri di superficie di vendita), oltre a uffici e spazi per eventi e ristorazione.
Il complesso è progettato secondo le tecnologie e le tecniche più recenti ed innovative con l’obiettivo di raggiungere il massimo della funzionalità e della razionalità delle singole unità immobiliari, così da rendere ininfluenti le spese di gestione relative agli impianti tecnologici.
Caratteristica peculiare dell’intervento è l’adozione di avanzate tecnologie impiantistiche d’avanguardia volte al massimo contenimento del consumo energetico nel pieno rispetto dell’ambiente, infatti tutte le unità immobiliari saranno edificate in classe “A4” (secondo la delibera della Regione Emilia Romagna dgr. 20 luglio 2015, n. 967).
Il capitolato prevede finiture di pregio tutte personalizzabili, pavimenti in ceramica grandi formati e parquet, rubinetterie e sanitari di design, riscaldamento a pavimento, aria condizionata, tapparelle motorizzate, impianto per il ricircolo dell'aria meccanizzato, pannelli fotovoltaici, pannelli solari termici, domotica e predisposizione per antifurto.
Possibilità di personalizzazione degli spazi e delle finiture interne.
Possibilità di scelta tra diverse autorimesse, posti auto e cantine a parte nel prezzo.
Trattativa riservata.
Per informazioni e visite previo appuntamento in ufficio: 335- 6444800 dott. Gollini Enrico, 335-6880908 geom. Fella Cristiano, 340-7710085 dott. Corica Giuseppe, 335-5362270 Carmine Mormile.

Piano Primo - Totale piani 5 - Ascensore Si

Mq 139 - Locali 4 - Camere 2 - Bagni 2 - Mq Balcone 42

Riscaldamento Conta Calorie - Tipo Riscaldam. Pompa di Calore

Orientamento Nord Ovest Sud Est - Lati Liberi 2 - Consegna Al rogito

Stato Immobile Prossima Realizzazione - Grado Signorile - Posizione Centro - Panorama Vista Aperta - Giardino No - Arredi Non Arredato - Tipo Soggiorno Soggiorno - Tipo Cucina A Vista - Tipo Impianto Pavimento - Fonte Energetica Fotovoltaico - Acqua Calda Centralizzata a Pannelli - Raffrescamento Split - Infissi Legno Triplo Vetro - Serramenti Nuovo - Persiana Tapparella PVC - Accesso Disabili Nessuna Barriera
ACCESSORI: Antifurto, Aria Condizionata, Bagno Handicap, Cancello Elettrico, Doppi Vetri, Fibra Ottica, Impianto Domotica, Impianto Fotovoltaico, Impianto Satellitare, Lavanderia, Pannelli Solari, Passaggio Automobilistico, Passaggio Pedonale, Porta Blindata, Rete Dati, Ripostiglio, Tapparelle Elettriche, Tavolini Esterni, Video Citofono, Video Sorveglianza, Zanzariere
Classe A4
Prezzo Riservato
Per vedere tutte le foto
vai su gruppomore.it
e inserisci il codice
MO794-BPB1
oppure inquadra il qr code
Qr Code