Fanano
VX2560 FANANO vendesi casa con 6 mini appartamenti già arredati e ristrutturati, adatti per investimento, da mettere a reddito o ad uso vacanza. Tutte le unità hanno riscaldamento autonomo. Di proprietà anche una area di terreno adiacente per parcheggiare le auto.

La casa di fine '600, è stata ristrutturata completamente qualche anno fa prestando particolare attenzione alla cura dei dettagli.

L'immobile si trova a circa 1000 mt dal centro di Fanano, a 1000 mt dal palaghiaccio, a 1600 mt dalla piscina comunale.

Le tipologie disponibili sono le seguenti:

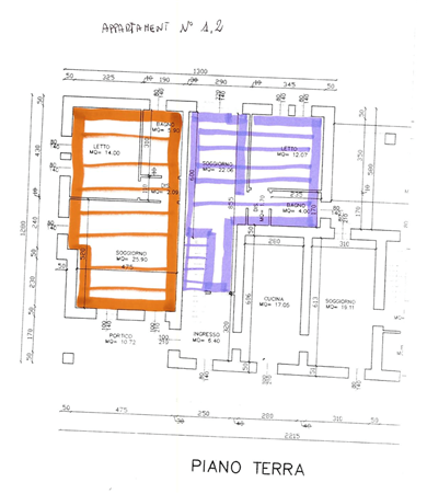
APPARTAMENTO 1 - posto al piano terra di 68 mq comm.li con 1 camera matrimoniale, cucina, bagno. Posti letto max. 4 (2 posti letto matrimoniale + 2 posti divano letto in cucina).

APPARTAMENTO 2 - posto al piano terra di 49 mq comm.li con 1 camera matrimoniale, cucina, bagno. Posti letto max. 4 (2 posti letto matrimoniale + 2 posti divano letto in cucina).

APPARTAMENTO 3 - posto al piano primo di 68 mq comm.li con 1 camera matrimoniale, cucina, bagno. Posti letto max. 4 (2 posti letto matrimoniale + 2 posti divano letto in cucina)

APPARTAMENTO 4 - posto al piano primo di 45 mq con 1 camera matrimoniale, cucina, bagno. Posti letto max. 4 (2 posti letto matrimoniale + 2 posti divano letto in cucina).

APPARTAMENTO 5 - posto al piano primo di 57,60 mq con 2 camere (1 matrimoniale, 1 singola con letto a castello), cucina, bagno. Posti letto max. 4 (2 posti letto matrimoniale + 2 posti letto a castello).

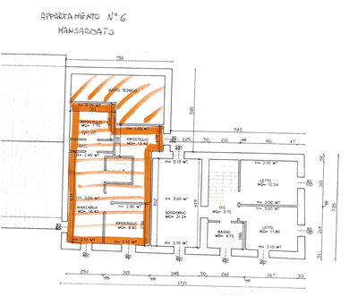
APPARTAMENTO 6 - posto al piano secondo di mq 57 comm.li MANSARDATO con 2 camere matrimoniali, cucina, bagno. Posti letto max. 4 (2 posti letto matrimoniale + 2 posti letto matrimoniale).

La vendita avviene in blocco, oppure tramite opzione su ogni singola unità per raggiungere la vendita in blocco.

Ascensore No

Mq 344 - Locali 13 - Camere 7 - Bagni 6 - Posti auto 6

Prezzo € 330.000
Per vedere tutte le foto
vai su gruppomore.it
e inserisci il codice
uso-interno
oppure inquadra il qr code
Qr Code