Modena (Zona Viali) via Volta
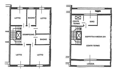
VD2495 ZONA VIALI, a pochi passi dal centro storico, proponiamo VILLA DI TESTA di ampia metratura, con finiture di ottima qualità e gusto, il tutto di recentissima costruzione. Composta piano terra con ingresso, ampia zona di servizio, taverna con accesso al giardino che rimane su tre lati della casa, lavanderia e grande garage. PIANO PRIMO ampio salone con balcone, cucina abitabile, bagno, studio o zona pranzo, PIANO SECONDO quattro camere da letto, due bagni, PIANO SOTTOTETTO ampia zona open space, attualmente adibita a palestra, relax, sauna e zona idromassaggio. Tutti i piani dell'abitazione sono serviti da un ascensore (montacarichi), l'immobile è dotato di impianto d'allarme, impianto di riscaldamente e condizionamento di massima efficenza, basculante automatico, cancelli automatici. Considerata la grande metratura sarebbe possibile ricavare una bifamigliarità interna. info c/o ns uffici. APE cl.

Totale piani 4 - Ascensore Si

Mq 330 - Locali 10 - Camere 4 - Bagni 4 - Box 1 - Mq Box 32 - Mq Giardino 200 - Mq Balcone 30

Riscaldamento Autonomo

Lati Liberi 3 - Consegna Al rogito

Stato Immobile Ottimo - Grado Signorile - Giardino Privato - Arredi Possibilità - Tipo Soggiorno Salone - Tipo Cucina Abitabile - Tipo Impianto Radiatori - Acqua Calda Autonoma - Infissi Legno Doppio Vetro - Serramenti Nuovo - Persiana Oscurante Legno - Pavim. Giorno Marmo - Pavim. Notte Parquet - Pavim. Cucina Ceramica - Pavim. Bagno Marmo - Accesso Disabili Nessuna Barriera
ACCESSORI: Antifurto, Aria Condizionata, Camino, Doppi Vetri, Doppio Ingresso, Impianto Satellitare, Lavanderia, Porta Blindata, Vasca Idromassaggio, Video Citofono
Classe C59 kWh/m²a
Prezzo Riservato
Per vedere tutte le foto
vai su gruppomore.it
e inserisci il codice
VD2495
oppure inquadra il qr code
Qr Code