Nonantola Via Parma
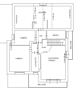
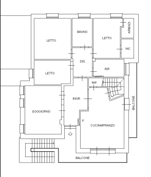
NONANTOLA Soluzione genitori/figli. No spese condominiali. Il tetto è stato rifatto. Vendesi appartamento di ampia metratura "duplex", con ingresso indipendente e area cortiliva di pertinenza. Immobile così composto; appartamento al primo piano completamente ristrutturato nel 2019; ingresso, ampio soggiorno, cucina abitabile con isola e due balconi, ripostiglio, disimpegno notte, una cameretta, camera matrimoniale più un ulteriore camera matrimoniale con bagno privato e cabina armadi, uno studio e un bagno a completare il primo piano, con accesso interno tramite scale (è presente il montascale) si sale al secondo piano dove troviamo un soggiorno con camino e due balconi, molto luminoso e un angolo cottura con bancone bar, due camere (una matrimoniale e una cameretta) ed un bagno. Completa l'immobile un solaio con lavanderia, una cantina.

Piano Primo - Totale piani 2 - Ascensore No

Mq 275 - Locali 8 - Camere 6 - Bagni 3 - Posti auto 2 - Mq Giardino 150 - Mq Balcone 20

Riscaldamento Autonomo

Lati Liberi 3 - Consegna Al rogito

Stato Immobile Ristrutturato - Grado Signorile - Posizione Periferia - Giardino Privato - Arredi Semi Arredato - Tipo Soggiorno Salone - Tipo Cucina Abitabile - Tipo Impianto Pavimento - Acqua Calda Autonoma - Persiana Tapparella PVC - Pavim. Giorno Gres Porcellanato - Pavim. Notte Gres Porcellanato - Pavim. Cucina Gres Porcellanato - Pavim. Bagno Ceramica - Isolamento Presente - Isolamento termico Cappotto esterno
ACCESSORI: Antifurto, Aria Condizionata, Camino, Cassaforte, Doppi Vetri, Lavanderia, Porta Blindata, Ripostiglio, Tapparelle Elettriche, Video Citofono, Zanzariere
Spese cond.li € 100 / anno
Prezzo € 395.000
Per vedere tutte le foto
vai su gruppomore.it
e inserisci il codice
VR7433
oppure inquadra il qr code
Qr Code