Imposta i filtri di ricerca
Menù disattivato
Provincia di Modena
Vedi elenco zone disponibiliVedi elenco zone disponibili
-
-
Affina la ricerca con ulteriori parametri altri parametri di ricerca
solo liberi o in pronta consegna
CERCA

Nonantola (Le Casette) Via Giorgina

Appartamento

Ingrandisci foto Stampa scheda immobile
NUOVO APPARTAMENTO CLASSE A 2 CAMERE 2 BAGNI E GIARDINO
Stampa scheda immobile
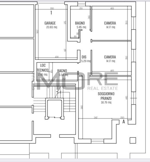
Proponiamo in vendita a Nonantola località Casette , in palazzina moderna di sole 5 unità, immersa nel verde e collegata al centro storico tramite un comodo percorso ciclopedonale appartamento nuova costruzione posto al piano terra di 139 mq comm.li e ampio giardino esclusivo.

Ingresso in ampia zona giorno con cucina a vista, un bagno posto nella zona giorno e locale tecnico. Il reparto notte si sviluppa con due camere matrimoniali disimpegno notte e bagno finestrato . Completa la proprietà un ampio giardino di 237 mq ed un garage al piano terra.

La palazzina è stata progettata in classe energetica A , con pannelli fotovoltaici autonomi per ciascuna unità in modo da assicura una efficienza energetica e bassi costi di gestione. Riscaldamento a pavimento. Ottime finiture.

Contesto moderno ed armonioso, la palazzina è circondata da una elegante area verde all'ingresso .

Consegna estate 2026
Prezzo 339.000

C-NO1

Caratteristiche

Codice
NO1
Prezzo
€ 339.000
Mq
139
Classe
A
Locali
3
Camere
2
Bagni
2
Box
1
Posti auto
1
Mq Giardino
237
Piano
Terra
Totale piani
3
Stato Immobile
In Costruzione
Grado
Signorile
Lati Liberi
3
Tipo Soggiorno
Soggiorno
Tipo Cucina
A Vista
Riscaldamento
Autonomo
Tipo Impianto
Pavimento
Fonte Energetica
Gas
Raffrescamento
Predisposizione
Infissi
PVC Triplo Vetro
Serramenti
Nuovo
Isolamento termico
Cappotto esterno
Accessori
Cancello Elettrico, Pannelli Solari, Parco Condominiale, Passaggio Automobilistico, Passaggio Pedonale, Porta Blindata, Video Citofono
C-NO1

Planimetrie

Cookie preference