Imposta i filtri di ricerca
Menù disattivato
Provincia di Modena
Vedi elenco zone disponibiliVedi elenco zone disponibili
-
-
Affina la ricerca con ulteriori parametri altri parametri di ricerca
solo liberi o in pronta consegna
CERCA

Modena (Cognento)

Villetta schiera

Ingrandisci foto Stampa scheda immobile
Modena Zona Cognento
Stampa scheda immobile
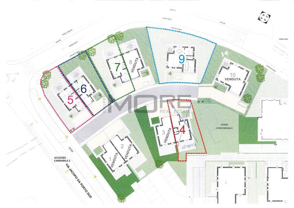
VP2826-6 COGNENTO
Vendesi villa abbinata in costruzione con consegna prevista entro dicembre 2026, Classe A4, disposta su due livelli:
P.T. Salone, cucina abitabile, bagno, giardino di mq. 280 e ampio garage
P.1. Tre camere matrimoniali, due bagni e balcone.
Classe: A4. Richiesta euro 675.000
P-VP2826-6

Caratteristiche

Codice
VP2826-6
Prezzo
€ 675.000
Mq
200
Classe
A4
Locali
4
Camere
3
Bagni
3
Box
1
Mq Giardino
280
Piano
Terra
Totale piani
1
Stato Immobile
In Costruzione
Grado
Signorile
Giardino
Privato
Tipo Soggiorno
Salone
Tipo Cucina
Abitabile
Riscaldamento
Autonomo
Tipo Impianto
Pavimento
Fonte Energetica
Fotovoltaico
Acqua Calda
Autonoma
Pavim. Giorno
Gres Porcellanato
Pavim. Notte
Parquet
Pavim. Bagno
Ceramica
Accessori
Aria Condizionata, Doppi Vetri, Impianto Fotovoltaico, Porta Blindata
P-VP2826-6
Cookie preference