Imposta i filtri di ricerca
Menù disattivato
Provincia di Modena
Vedi elenco zone disponibiliVedi elenco zone disponibili
-
-
Affina la ricerca con ulteriori parametri altri parametri di ricerca
solo liberi o in pronta consegna
CERCA

Formigine (Casinalbo)

Appartamento

Ingrandisci foto Stampa scheda immobile
APP.TO DI 125 MQ. IN PALAZZINA NUOVA A CASINALBO In trattativa
Stampa scheda immobile
VD860-UMI2(A7). Nostra esclusiva, Casinalbo, Borgo San Luigi - Ex Salumificio Maletti, in angolo verde comodo a tutti i servizi prossima realizzazione di comparto residenziale (Classe Energetica A4 - NZEB) composto da nr. 9 palazzine e due ville indipendenti. All'interno della palazzina UMI2A, di dieci unità abitative, vendesi app.to "A7" di 135 mq. comm. ubicato al piano secondo e ultimo con ascensore.
Caratteristica peculiare dell’intervento è l’adozione di avanzate tecnologie impiantistiche d’avanguardia volte al massimo contenimento del consumo energetico nel pieno rispetto dell’ambiente, infatti tutte le unità immobiliari saranno edificate in classe “A4” -NZEB (secondo la delibera della Regione Emilia Romagna dgr. 20 luglio 2015, n. 967).
Il capitolato prevede finiture di pregio tutte personalizzabili, pavimenti in ceramica grandi formati e parquet, rubinetterie e sanitari di design, riscaldamento in pompa di calore a pavimento, aria condizionata, impianto per il ricircolo dell'aria meccanizzato puntuale, pannelli fotovoltaici, addolcitore acque e predisposizione per antifurto.
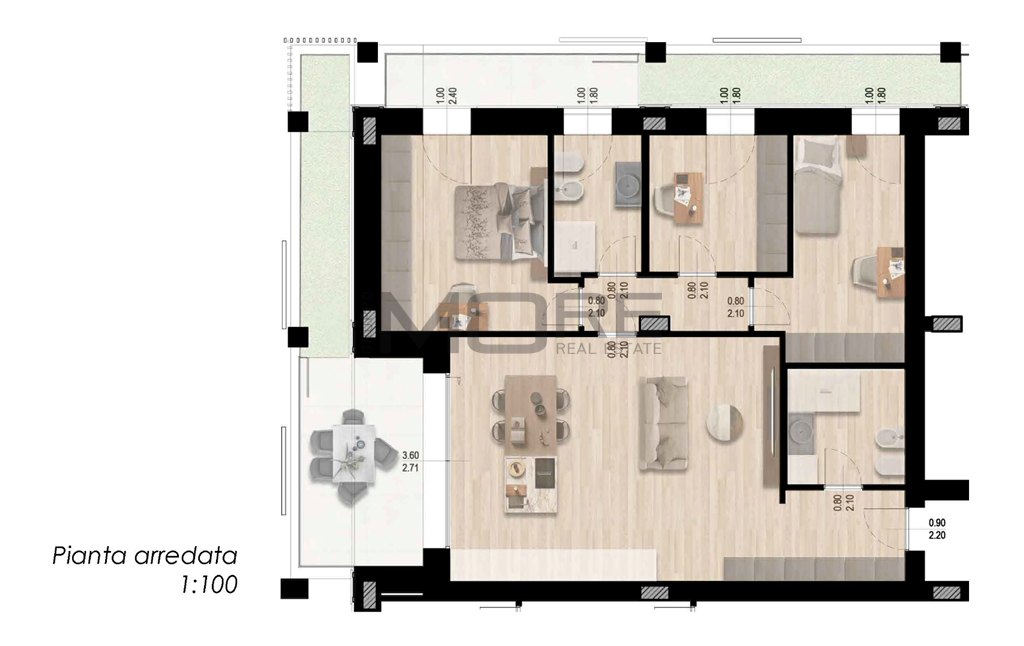
App.to così disposto: ingresso, soggiorno con sbocco sul terrazzo e giardino pensile, cucina a vista, bagno cieco, dis. notte, due camere da letto, uno studio, bagno finestrato e secondo terrazzo con giardino pensile.
Possibilità di personalizzazione degli spazi e delle finiture interne.
Completo di ampio garage.
Prezzo: 460.000 €.
Consegna dicembre 2026.
D-MO860D-UMI2(A7)

Caratteristiche

Codice
MO860D-UMI2(A7)
Prezzo
€ 460.000
Spese cond.li
€ 1.000 / anno
Mq
135
Classe
A4
0,4 kWh/m²a
Locali
5
Camere
3
Bagni
2
Box
1
Mq Box
30
Piano
Secondo
Totale piani
2
Stato Immobile
In Costruzione
Grado
Signorile
Posizione
Centro
Panorama
Vista Aperta
Orientamento
Nord Ovest
Lati Liberi
2
Giardino
Privato
Arredi
Non Arredato
Tipo Soggiorno
Soggiorno
Tipo Cucina
A Vista
Riscaldamento
Conta Calorie
Tipo Riscaldam.
Pompa di Calore
Tipo Impianto
Pavimento
Fonte Energetica
Fotovoltaico
Acqua Calda
Centralizzata
Raffrescamento
Split
Infissi
Metallo Triplo Vetro
Serramenti
Nuovo
Persiana
Tapparella PVC
Pavim. Giorno
Parquet
Pavim. Notte
Parquet
Pavim. Cucina
Parquet
Pavim. Bagno
Ceramica
Accesso Disabili
Nessuna Barriera
Accesso interno disabili
Pieno accesso
Accessori
Antifurto, Aria Condizionata, Ascensore, Bagno Handicap, Cancello Elettrico, Doppi Vetri, Impianto Fotovoltaico, Passaggio Automobilistico, Passaggio Pedonale, Porta Blindata, Rete Dati, Tapparelle Elettriche, Tavolini Esterni, Video Citofono, Video Sorveglianza, Zanzariere
D-MO860D-UMI2(A7)

Planimetrie

Cookie preference